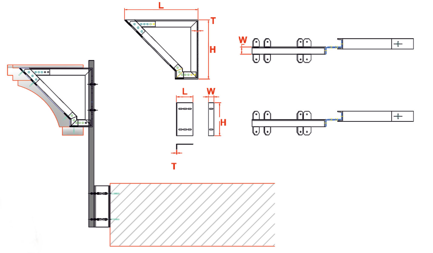
Üçgen Ankraj Tipi 2

Üçgen Ankraj Tipi 2

Ürün Kodu: Üçgen Ankraj Tipi 2
Etiketler: Üçgen Ankraj Tipi 2 ,